Non-realized set design for Tennessee Williams’ The Glass Menagerie, completed for a set design class at UBC Vancouver. Technical drawings produced in Vectorworks 2016 unless otherwise specified.

Final set rendering 
Final Ground Plan (AutoCAD 2014) 
Centreline Section 
Platform Elevations 
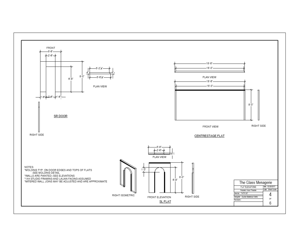
Wall Elevations 
Moulding Detail 
Wall Elevations 
Wall Elevations 
White Model 
White Model 
Initial Watercolour Rendering 
Sketch Perspective Rendering 
Sketch Ground Plan